![]() |
||||
| ... Ausgewählte Projekte | ||||
| ... Profil / Kontakt | ||||
| ... Impressum | ||||
| ... Datenschutz | ||||
| ... Gauselmann Architekten | ||||
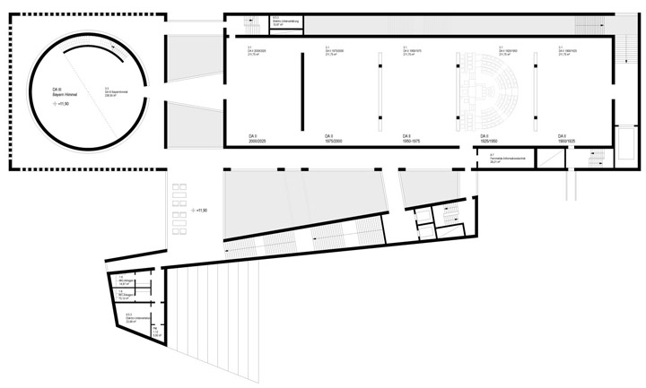
Museum der Bayerischen Geschichte, Regensburg |
||||
![]() |
||||
| Ansicht zur Donau | ||||
| Neubau Museum der Bayerischen Geschichte - MdBG Wettbewerbsbeitrag, mit Inga Soll Der Grundriss des Foyers bildet den historischen Gassenverlauf des Quartiers ab, wobei die beiden Haupteingänge des Museums der Donau und der Altstadt zugewandt sind. Die aus der Altstadt kommende Straße Unter den Schwibbögen führt direkt in den neuen Stadt- Eingang des Museums und wird als Gasse durch das Gebäude hindurch geführt. |
||||
![]() |
||||
| Lageplan | ||||
![]() |
||||
| Grundris Obergeschoss | ||||
![]() |
||||
| Ausstellungsbereich "Bayern-Himmel" | ||||
| ... nach oben | ||||
| © gauselmann architekten | ||||